ID : 4328
Izdavanje 5.500 €
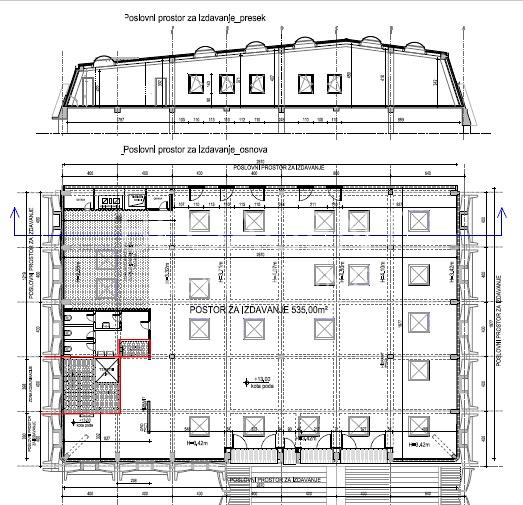
Poslovni kancelarijski prostor u samom centru Zemuna, u poslovnoj zgradi na 3/3 spratu povrsine 540m2. Sa izuzetno velikim visinama i krovnom tavanicom na kojoj je uradjena krovna kupola koja ne samo da ima veliku prosvetljenost vec i mogucnost otvaranja sto daje doadatnu provetrenost i fantastican utisak panoramskog neba. Osim krovnih prozora tu su i bocni otvori i vrata za izlaz na terasu. Prosotor zauzima celu povrsinu etaze i do njega je omogucena komunikacija sa putnickim liftom i stepenicama od prijemnog pulta u objekat. Sistem grejanja i hladjenja je VRV tipa i placa se po utrosku elektricne energije. Postoji zasebno kontrolono brojilo za svaku etazu , kao i kontrolno brojilo za utrosak vode. Cena odrzavanja prostora je 1.50 eur/m2 mesecno u sta je uracunato odrzavanje/servsiranje llifta, stepenica, servisiranje i odrzavanje sistema za dojavu pozara, klimatizacije i grejanja,obezbedjenje partera , info pult 24/7 dana mesecno. Uz ovaj prostor omogucen je i zakup 10 parking mesta i to 80 eura/meseno po parking mestu. Vlasnik pravno lice Agencijska provizija 50% Registarski broj 070
Detalji
- Ulica: GLAVNA
- Tip objekta: KANCELARIJ
- Useljivost:
- Grejanje: eg
- Sprat: 3/3
- God. izgradnje:
- Uknjizen:

